RENOVATION TOTALE d'APPARTEMENT
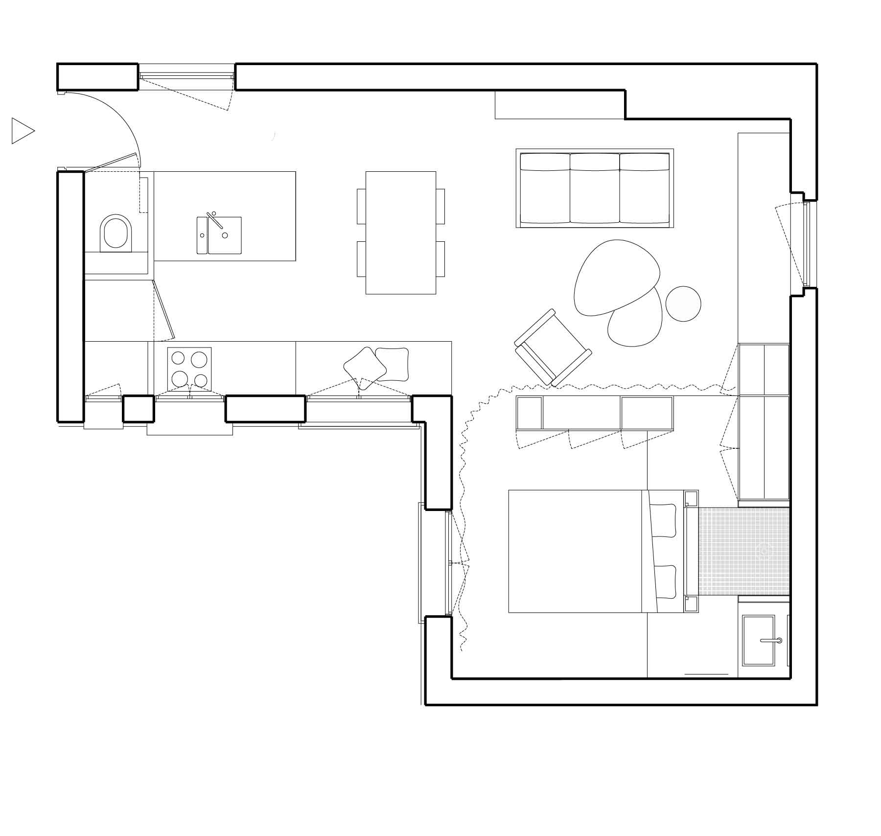
L’appartement se situe au 5ème étage d’un immeuble du début du XXème siècle dans le quartier Marx Dormoy dans le 18ème arrondissement de Paris. Nous sommes en présence d’un volume simple dont la morphologie en L permet des vues directes et biaises sur de grandes longueurs. De plus, des ouvertures sur quatre orientations permettent à la lumière naturelle d'inonder le volume tout au long de sa course quotidienne. Dès l’origine du projet il est décidé de faire tabula rasa de ce qui a pu préexister. L’ensemble des cloisons est abattu pour redonner une base neutre ou les seuls acteurs seront désormais lumière et mouvement. Le volume conservé ouvert dans sa totalité joue désormais comme un grand réflecteur de lumière naturelle. Trois ensembles disposés dans l’espace suffisent à définir espaces et usages, déplacements et mouvements. Ce nouvel aménagement pensé comme un paysage intérieur donne lieu à des espaces continus mais dissociés. La circulation du regard à travers de grandes lignes de fuites et la circulation du corps sans impasse participe à la sensation de grande spatialité. La réduction des éléments, des matières et des teintes à la plus grande simplicité génère une atmosphère douce et paisible. Un sol gris uni abstractise le plan horizontal. Tandis que l’ensemble des murs sont blancs. L’utilisation du bouleau pour les meubles sur mesure permet de les dissocier du volume d’origine. Celui-ci qui est toujours redonné à lire dans sa plus simple définition volumétrique.







