RENOVATION TOTALE d'APPARTEMENT
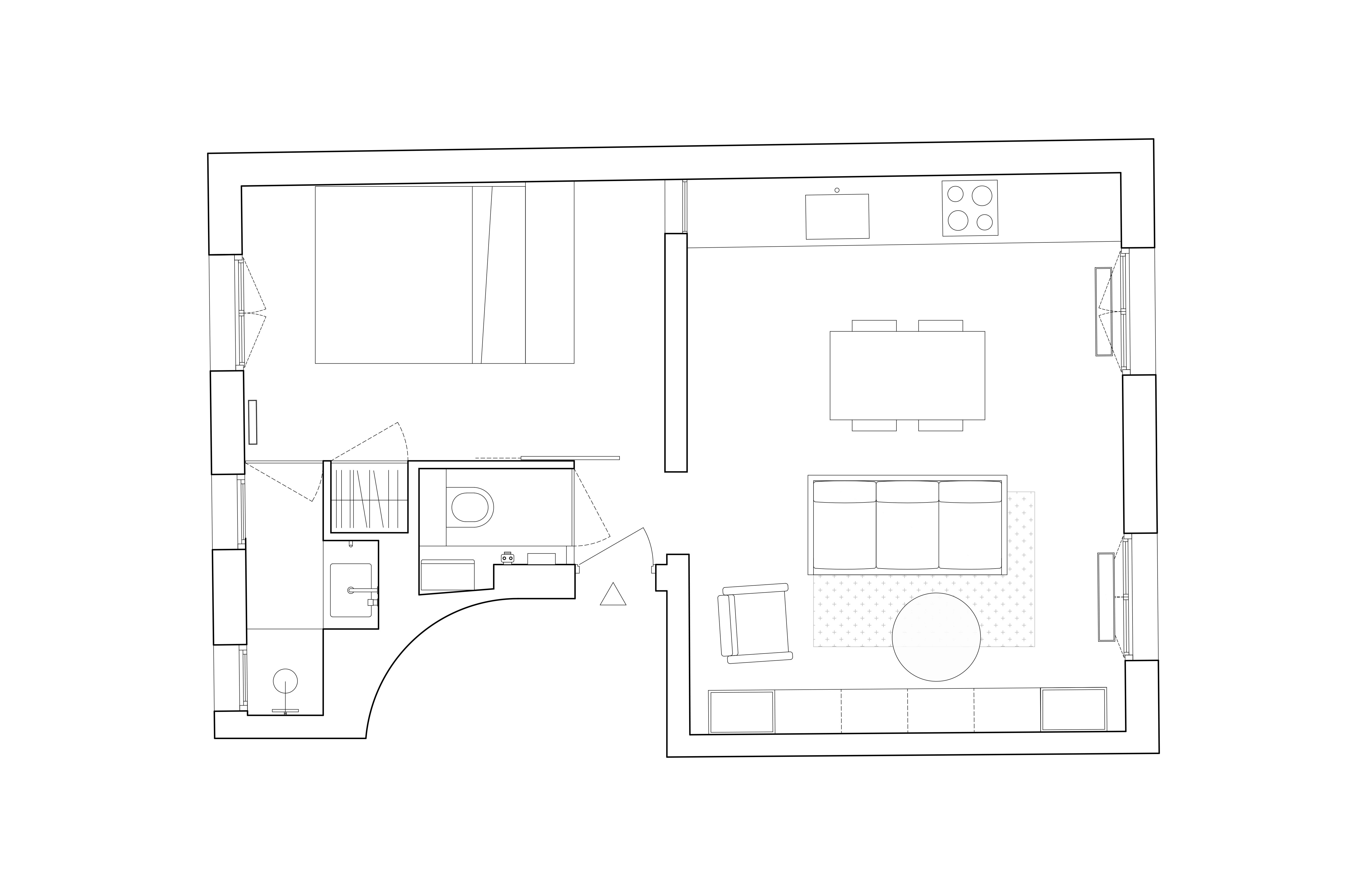
Au cœur du quartier de Belleville, là où le coteau commence son ascension, l’appartement cis 44 rue Ramponeau nécessite une rénovation et une réorganisation de ses espaces. Situé au troisième étage d’un immeuble de rapport de quatre étages. On accède à la cage d’escalier commune par l’intermédiaire d’une cour le long de l’arrière de l’immeuble. A chaque étage la cage dessert deux appartements. L’appartement concerné par le projet est traversant entre la rue ramponneau au nord et le cœur d’îlot au sud. La proposition de réaménagement est guidée par les atouts volumétriques et contextuels du lieu. Le première intention est de simplifier la volumétrie globale de l’appartement, l’ensemble des cloisons sont déposées. La mise à nu de la file porteuse centrale constitue l’acte fédérateur du volume traversant nord sud qui constitue l’atout majeur de l’appartement. Le nouvel aménagement donne la perception de l’appartement comme un espace continu, pouvant être dissocié en sous-volumes. Même si la fluidité de mouvement et la circulation de lumière naturelle se développent entre les différents espaces de l’appartement, chacun conserve son autonomie.








